Tòa nhà được thiết kế bởi Công ty kiến trúc Henning Larsen Architects, Đan Mạch. Được khởi công xây dựng năm 2001 và hoàn thành năm 2004 với tổng kinh phí xây dựng 500 triệu USD - kinh phí đầu tư không nhỏ cho một công trình nhà hát.
Nhà hát dường như tách riêng mình bên đảo (Dokøen), hướng về phía cảng đối diện nơi có quảng trường lớn - điểm cuối trục đường quan trọng của phố Frederik - nơi có nhiều hoạt động ngoài trời. Đi dạo phía bên này cảng, du khách sẽ được chiêm ngưỡng vẻ đẹp mê đắm và lộng lẫy của nhà hát opera nằm bờ đối diện. Nó lồ lộ sừng sững nhưng cứ như ẩn hiện, kỳ ảo và lúc nào cũng như mời gọi du khách đến chiêm ngưỡng và chinh phục.
Với diện tích sàn khoảng 41.000m2, toàn bộ nhà hát có 1.100 phòng và hai cụm lớn, sân khấu chính với 1.500 chỗ ngồi và phòng thu âm (takkelloftet) 200 ghế ngồi. Các phòng chức năng này được bố trí hợp lý trên 14 tầng của tòa nhà với 5 tầng bên trên và 9 tầng dưới mặt đất.
Nhà hát gồm nhiều phòng chức năng bên trong và được chia làm hai khu vực chính: nhà trước và hậu trường. Không gian nhà trước bao gồm sảnh đón khách và khán phòng; nhà sau là diện tích dành cho các thiết bị, phòng thay đồ, shop trang phục và các văn phòng quản lý và các trang thiết bị diễn tập cho ca sĩ, đội hợp xướng, nghệ sĩ, ban nhạc và diễn viên balê.

Cận cảnh mặt trước của nhà hát opera
Nhằm tạo sự nổi bật các đặc trưng của một thành phố cảng, chính quyền thành phố Copenhagen đã mời ba công ty kiến trúc West 8, Sjoerd Soeters và Henning Larsens Tegnestue nghiên cứu đề án quy hoạch cảng Copenhagen vào năm 2000 cho sự phát triển khu vực này trong tương lai. Công ty Henning Larsens Tegnestue (HLT) phụ trách phần quy hoạch kiến trúc chính bên trong cảng (hai công ty còn lại phụ trách kiến trúc cho phần diện tích phía bắc và phía nam).
Công ty HTL đã quy hoạch xây dựng Nhà hát opera - công trình lớn nhất ở cảng biển này - tạo điểm nhấn về kiến trúc cảng và thu hút các hoạt động văn hóa - du lịch cho khu trung tâm cảng biển.
Công ty HTL đã quy hoạch xây dựng Nhà hát opera - công trình lớn nhất ở cảng biển này - tạo điểm nhấn về kiến trúc cảng và thu hút các hoạt động văn hóa - du lịch cho khu trung tâm cảng biển.

Vị trí quy hoạch và tầm nhìn ra toàn bộ cảng biển của nhà hát Opera
Nhà hát dường như tách riêng mình bên đảo (Dokøen), hướng về phía cảng đối diện nơi có quảng trường lớn - điểm cuối trục đường quan trọng của phố Frederik - nơi có nhiều hoạt động ngoài trời. Đi dạo phía bên này cảng, du khách sẽ được chiêm ngưỡng vẻ đẹp mê đắm và lộng lẫy của nhà hát opera nằm bờ đối diện. Nó lồ lộ sừng sững nhưng cứ như ẩn hiện, kỳ ảo và lúc nào cũng như mời gọi du khách đến chiêm ngưỡng và chinh phục.

Mặt chính diện nhà hát nhìn từ cung điện mùa đông

Ảnh mặt đứng tòa nhà
Mặt chính diện tòa nhà trông như phần hình bầu dục làm bằng kính ngăn cách với không gian bên trên bằng một bản mái bê tông phẳng côngxôn lớn nhô ra ngoài mặt tiền.
Với không gian kiến trúc độc đáo và đặt trưng, nhiều chuyên gia đánh giá nhà hát Opera Copenhagen là công trình nhà hát “cực kỳ hoàn hảo” và được xem là một trong những nhà hát kịch vĩ đại trên thế giới.
Việc sử dụng vật liệu kính phía trước làm nổi bật không gian và các họa tiết bên trong tòa nhà như đèn trang trí, cầu thang và nội thất gỗ màu vàng sặc sỡ trang trí bên ngoài bề mặt kháng phòng. Mặt chính diện được trang trí đá Jura Gelb, loại đá đặc trưng ở miền bắc nước Đức.
Nhìn từ xa, toàn bộ khối tòa nhà trông giống một cái mũ (trong bộ quan phục ngày xưa) khổng lồ nằm bên bờ hải cảng và được trang trí với các khối màu đặc biệt. Khi màn đêm buông xuống, nhà hát trở nên đẹp lộng lẫy lạ thường, mờ ảo dưới ánh đèn vàng; soi mình lung linh bóng nước.
Vẻ đẹp nên thơ và lãng mạn ấy hòa quyện vào mặt nước lăn tăn gợn sóng, thu hút hàng trăm cặp tình nhân ngồi chiêm ngưỡng hằng đêm phía bên này sông mãi tận khuya.
Với không gian kiến trúc độc đáo và đặt trưng, nhiều chuyên gia đánh giá nhà hát Opera Copenhagen là công trình nhà hát “cực kỳ hoàn hảo” và được xem là một trong những nhà hát kịch vĩ đại trên thế giới.
Việc sử dụng vật liệu kính phía trước làm nổi bật không gian và các họa tiết bên trong tòa nhà như đèn trang trí, cầu thang và nội thất gỗ màu vàng sặc sỡ trang trí bên ngoài bề mặt kháng phòng. Mặt chính diện được trang trí đá Jura Gelb, loại đá đặc trưng ở miền bắc nước Đức.
Nhìn từ xa, toàn bộ khối tòa nhà trông giống một cái mũ (trong bộ quan phục ngày xưa) khổng lồ nằm bên bờ hải cảng và được trang trí với các khối màu đặc biệt. Khi màn đêm buông xuống, nhà hát trở nên đẹp lộng lẫy lạ thường, mờ ảo dưới ánh đèn vàng; soi mình lung linh bóng nước.
Vẻ đẹp nên thơ và lãng mạn ấy hòa quyện vào mặt nước lăn tăn gợn sóng, thu hút hàng trăm cặp tình nhân ngồi chiêm ngưỡng hằng đêm phía bên này sông mãi tận khuya.

Nhà hát lung linh soi bong nước khi thành phố lên đèn

Mặt chính diện hình bầu dục của nhà hát opera
Vào bên trong nhà hát, chắc hẳn du khách sẽ ngỡ ngàng với vẻ đẹp trang trọng và kỳ vĩ của nhà hát lớn có một không hai này. Đèn trang trí đủ màu sắc, một số được thiết kế trong khối cầu to lung linh kỳ ảo. Cầu thang, hành lang uốn lượn nối vào sân khấu lớn với bề mặt hình cầu.
Sảnh đón công cộng bên ngoài rất rộng và thoáng; đủ sức chứa hàng ngàn người, một mình đi vào chốn này du khách bỗng thấy mình trở nên nhỏ bé lạ thường. Sảnh đón, cầu thang và thính phòng dường như treo lơ lửng bên trên. Bên ngoài khán phòng được trang trí bằng gỗ cao cấp màu vàng như tạo không gian ngăn cách giữa thế giới bên trong và bên ngoài. Khán giả như luôn có cảm giác đợi chờ để được chiêm ngưỡng một thế giới khác bên trong thính phòng này.
Sảnh đón công cộng bên ngoài rất rộng và thoáng; đủ sức chứa hàng ngàn người, một mình đi vào chốn này du khách bỗng thấy mình trở nên nhỏ bé lạ thường. Sảnh đón, cầu thang và thính phòng dường như treo lơ lửng bên trên. Bên ngoài khán phòng được trang trí bằng gỗ cao cấp màu vàng như tạo không gian ngăn cách giữa thế giới bên trong và bên ngoài. Khán giả như luôn có cảm giác đợi chờ để được chiêm ngưỡng một thế giới khác bên trong thính phòng này.
| Toàn cảnh khán phòng rực rỡ sắc màu |
| Cận cảnh một góc khán đài |
| Bố trí ghế ngồi ở hội trường lớn dưới khán đài |
| Sảnh đợi bên trong nhà hát |
| Sảnh đợi nhìn từ trên cao khi đông khách |
| Một góc cầu thang, hành lang và cầu nối vào khán phòng |
| Cận cảnh lối vào khán phòng - mặt ngoài trang trí bằng gỗ |
The Boldy Contemporary Design Copenhagen Opera House
The Contemporary Design Copenhagen Opera House
The Copenhagen Opera House by Henning Larsen Tegnestue
The Exterior Copenhagen Opera House 01
The Exterior Copenhagen Opera House 02
The Exterior Design View Copenhagen Opera House
The Interior Boldy Contemporary Design
The Interior Copenhagen Opera House
Các cầu thang, sảnh đợi, lối đi uốn lượn theo mặt cong khán phòng. Các cầu thang nối từ sảnh đợi vào kháng phòng tạo một kiến trúc xuyên tâm trông rất đẹp và bắt mắt. Phía trên các lầu đều có quầy bar phục vụ ăn uống cho khách.
Quang cảnh bên trong khán phòng được trang hoàng rất đẹp, rất lớn và trang trọng khiến bạn có cảm giác như đi vào một thế giới khác - một “thế giới riêng của nhạc kịch và múa balê”. Màu sắc được phối hợp rất độc đáo và đa dạng, các hàng ghế ngồi màu xanh trên sàn gỗ màu vàng; xung quanh là tường màu nâu đỏ tương phản với màu xanh trắng của sân khấu.

Chắc chắn mọi thứ trở nên lung linh, huyền ảo với các hiệu ứng màu từ hệ thống đèn chiếu. Bốn tầng khán đài được thiết kế hướng về sân khấu chính với các kết cấu vòm trang trí gỗ màu (vàng và nâu đỏ), đèn chiếu, và các họa tiết trang trí tạo cho khán phòng một không gian có sức hấp dẫn huyền bí lạ thường.Sức chứa thực tế của khán phòng dao động 1.400-1.700 khách tùy số lượng đoàn biểu diễn nghệ thuật. Phía bên trái khán đài là khu vực dành riêng cho hoàng gia - nơi nữ hoàng và khách mời riêng của nữ hoàng sử dụng trong suốt buổi biểu diễn. Khu vực này được xây cách ly với khác khu khác nhằm tạo sự an toàn cho hoàng tộc trong suốt thời gian xem nhạc kịch.

Ngoài ra, phòng thu âm nằm cách biệt với khán phòng và có lối đi riêng. Đây là một phòng kín 200 chỗ ngồi và có thể linh hoạt thay đổi kích thước phù hợp điều kiện biểu diễn. Phòng diễn tập của dàn nhạc là một phòng tương đối lớn cho khoảng 120 người nghệ sĩ và đội hợp xướng. Một hệ thống các phòng nhỏ đặt phía dưới khán phòng lớn, thấp hơn 14m so với mực nước biển, là nơi để các thiết bị và nhạc cụ cho ban nhạc và ca đoàn.

exterior view - image © julian weyer

exterior view - image © julian weyer

skylight- image © julian weyer

in use image © julian weyer

bench detail image © julian weyer

at night image © julian weyer

image © julian weyer

image © julian weyer

image © julian weyer

image © julian weyer

site plan

floor plan

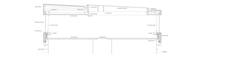
section

elevation
Quang cảnh bên trong khán phòng được trang hoàng rất đẹp, rất lớn và trang trọng khiến bạn có cảm giác như đi vào một thế giới khác - một “thế giới riêng của nhạc kịch và múa balê”. Màu sắc được phối hợp rất độc đáo và đa dạng, các hàng ghế ngồi màu xanh trên sàn gỗ màu vàng; xung quanh là tường màu nâu đỏ tương phản với màu xanh trắng của sân khấu.

Chắc chắn mọi thứ trở nên lung linh, huyền ảo với các hiệu ứng màu từ hệ thống đèn chiếu. Bốn tầng khán đài được thiết kế hướng về sân khấu chính với các kết cấu vòm trang trí gỗ màu (vàng và nâu đỏ), đèn chiếu, và các họa tiết trang trí tạo cho khán phòng một không gian có sức hấp dẫn huyền bí lạ thường.Sức chứa thực tế của khán phòng dao động 1.400-1.700 khách tùy số lượng đoàn biểu diễn nghệ thuật. Phía bên trái khán đài là khu vực dành riêng cho hoàng gia - nơi nữ hoàng và khách mời riêng của nữ hoàng sử dụng trong suốt buổi biểu diễn. Khu vực này được xây cách ly với khác khu khác nhằm tạo sự an toàn cho hoàng tộc trong suốt thời gian xem nhạc kịch.

Ngoài ra, phòng thu âm nằm cách biệt với khán phòng và có lối đi riêng. Đây là một phòng kín 200 chỗ ngồi và có thể linh hoạt thay đổi kích thước phù hợp điều kiện biểu diễn. Phòng diễn tập của dàn nhạc là một phòng tương đối lớn cho khoảng 120 người nghệ sĩ và đội hợp xướng. Một hệ thống các phòng nhỏ đặt phía dưới khán phòng lớn, thấp hơn 14m so với mực nước biển, là nơi để các thiết bị và nhạc cụ cho ban nhạc và ca đoàn.

exterior view - image © julian weyer

exterior view - image © julian weyer

skylight- image © julian weyer

in use image © julian weyer

bench detail image © julian weyer

at night image © julian weyer

image © julian weyer

image © julian weyer

image © julian weyer

image © julian weyer

site plan

floor plan

section

elevation
Đến với Copenhagen, nếu có cơ hội du khách đừng quên dành thời gian thưởng thức một buổi trình diễn nghệ thuật ở nhà hát này. Mua vé từ sáng hôm trước, chúng ta có thể xem trình diễn vào buổi tối hôm sau. Nhưng với các buổi trình diễn nghệ thuật đặc sắc ở nhà hát opera đẹp như mơ này chắc chắn mang đến sự thưởng ngoạn tuyệt vời cùng cảm giác khám phá thú vị và tạo thêm hương vị đặc biệt cho chuyến du lịch của bạn.







No comments:
Post a Comment